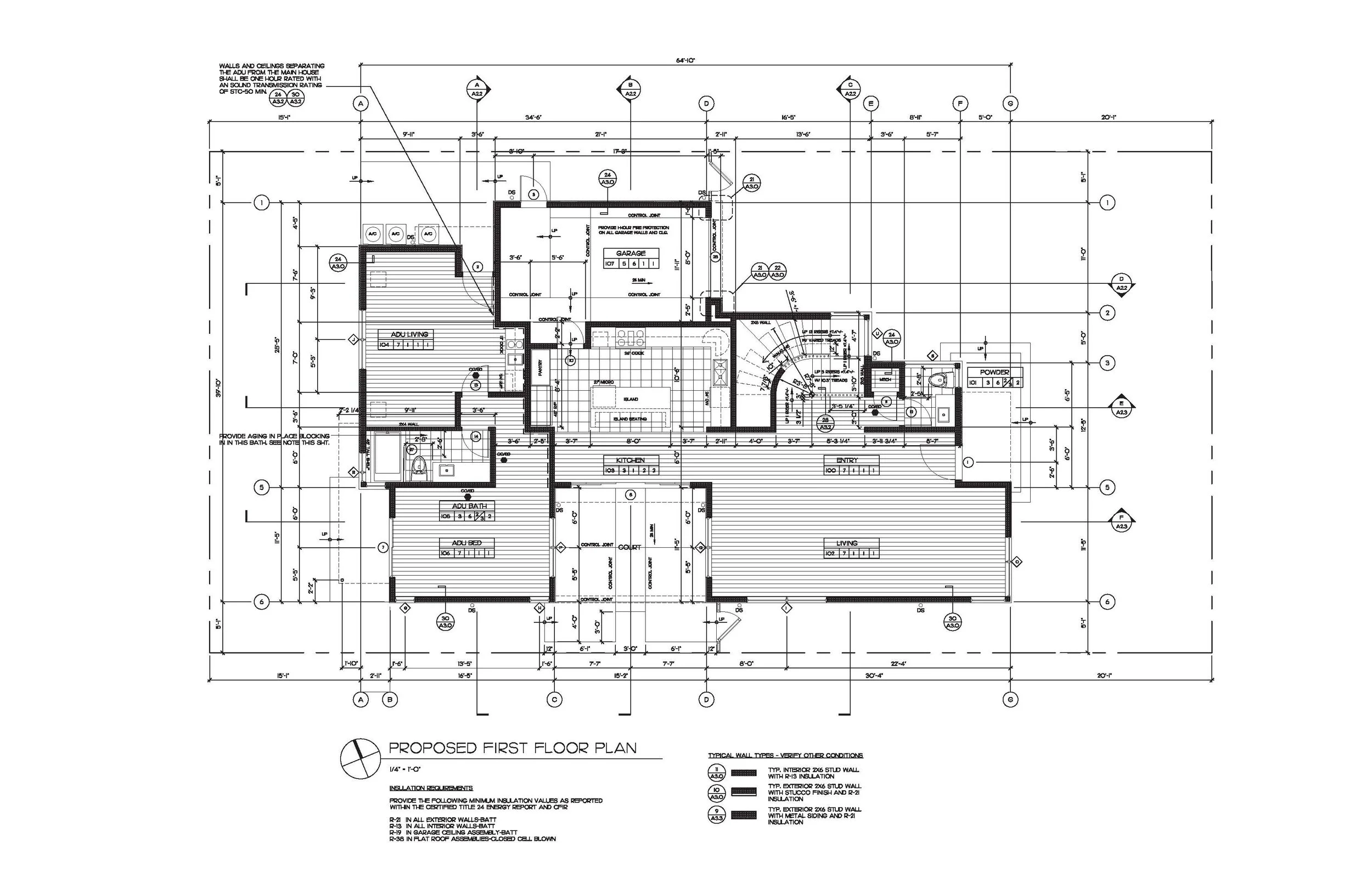
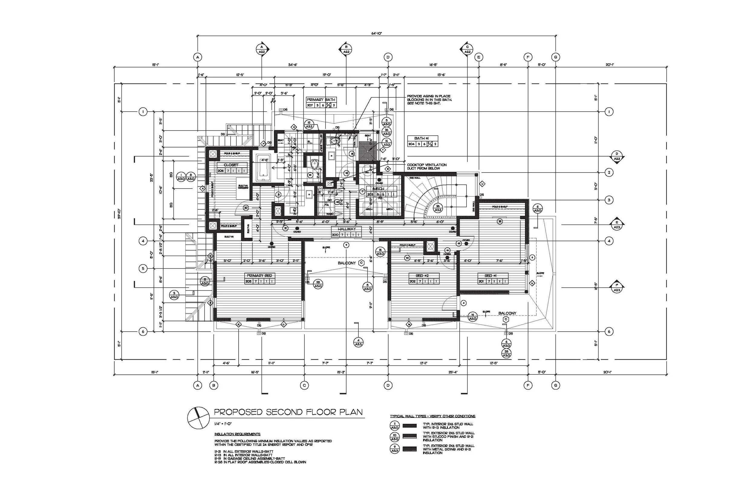
Pickford Way Residence
Project Info
Client: Pickford Way Residence
Location: Culver City, CA
2,800 sq. ft. residence
This single family residence is designed on a standard 50’ X125’ city lot. The design incorporates inside/outside living with interior spaces arranged around an outdoor room or courtyard. The central court is and extension of the interior spaces and allows for outdoor entertainment central to the interior public spaces. The open plan first floor is zoned for public spaces with the second floor reserved for private functions. The project includes an attached ADU on the rear of the first floor, which can be used as a separate dwelling or further expansion of both public and private spaces on the main level of the house.
