La Corona Residence
Project Info
Client: La Corona Ave. Residence
Location: Altadena, CA
2,800 sq. ft. residence
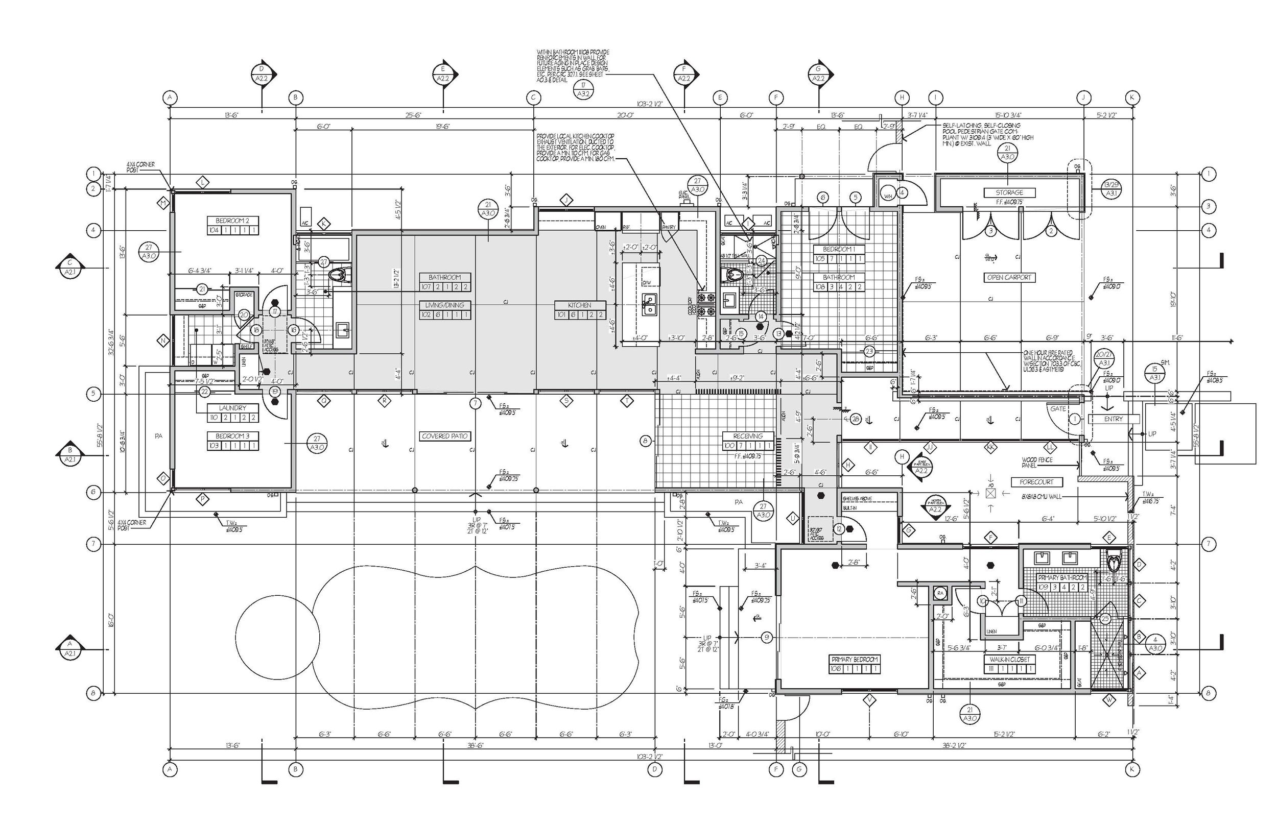
Located in the foothills of Altadena, the project consists of a new single family residence, which replaced the previous structure lost to the Eaton Fire. The Owner’s, dealing with the overcoming loss of their home, chose to start fresh with a different design direction from the prior development. Moving forward, the strategy was to design a new home, on the existing developed pad, which embraced the sensibility of the Mid-Century Modern Case Study homes. The single story design is aligned with the existing surviving pool/spa and incorporates elements such as steel posts and beams, covered carport and entry courtyard. To provide added defense to any future fire potential, the framework of the building was first clad with a fire protection board and skinned with an assemblage of pre-finished metal wall panels, cement plaster, pre-finished metal clad windows/doors and capped with gravel ballast over a fire rated membrane.
