Unbuilt and Feasibility
Project Info
Client: Various
Location: Various
Residential and Commercial
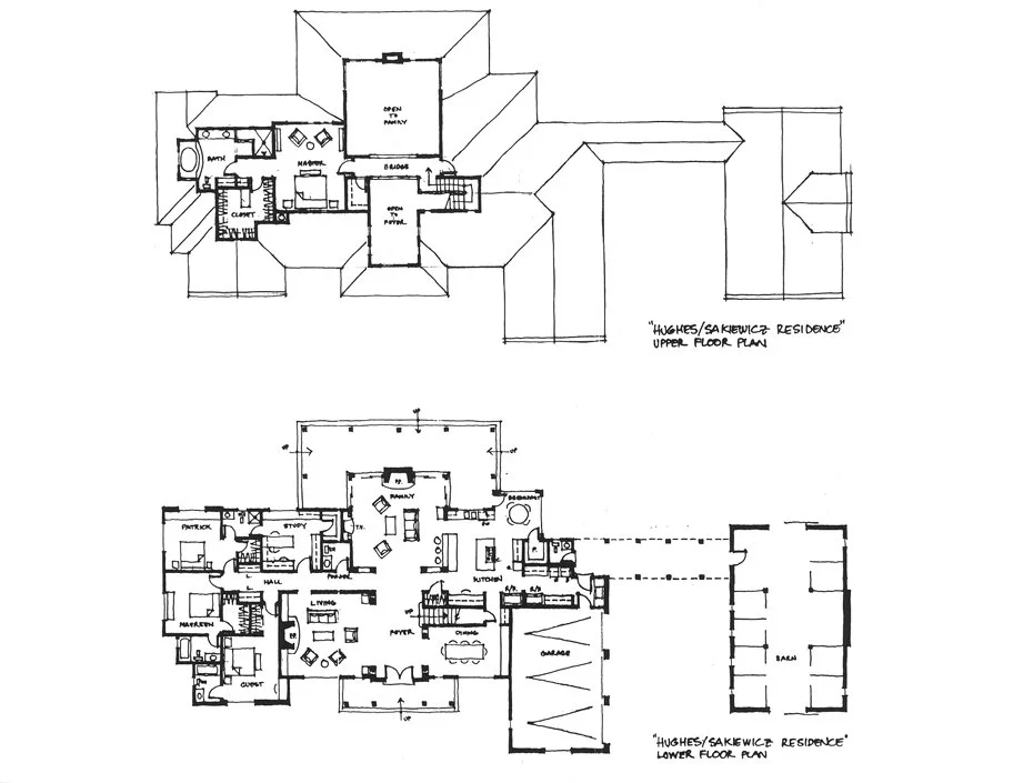
This section represents projects which were feasibility studies and/or unbuilt projects. Some of these projects were developed to either aide in the marketing of specific vacant and undeveloped properties, or to assist prospective purchasers of specific properties to help understand what can be achieved from a planning and preliminary design standpoint. Some examples represent a simple diagram as to how one can utilize the property in respect to hillside topography as well as basic planning/zoning criteria, while others were taken further to represent a more comprehensive building design with descriptive floor plans and exterior facades. Some of these studies led to completed projects which may have been a derivative of the study.
