Broad Beach Residence
Project Info
Client: Broad Beach Residence
Location: Malibu, CA
5,000 sq. ft. residence
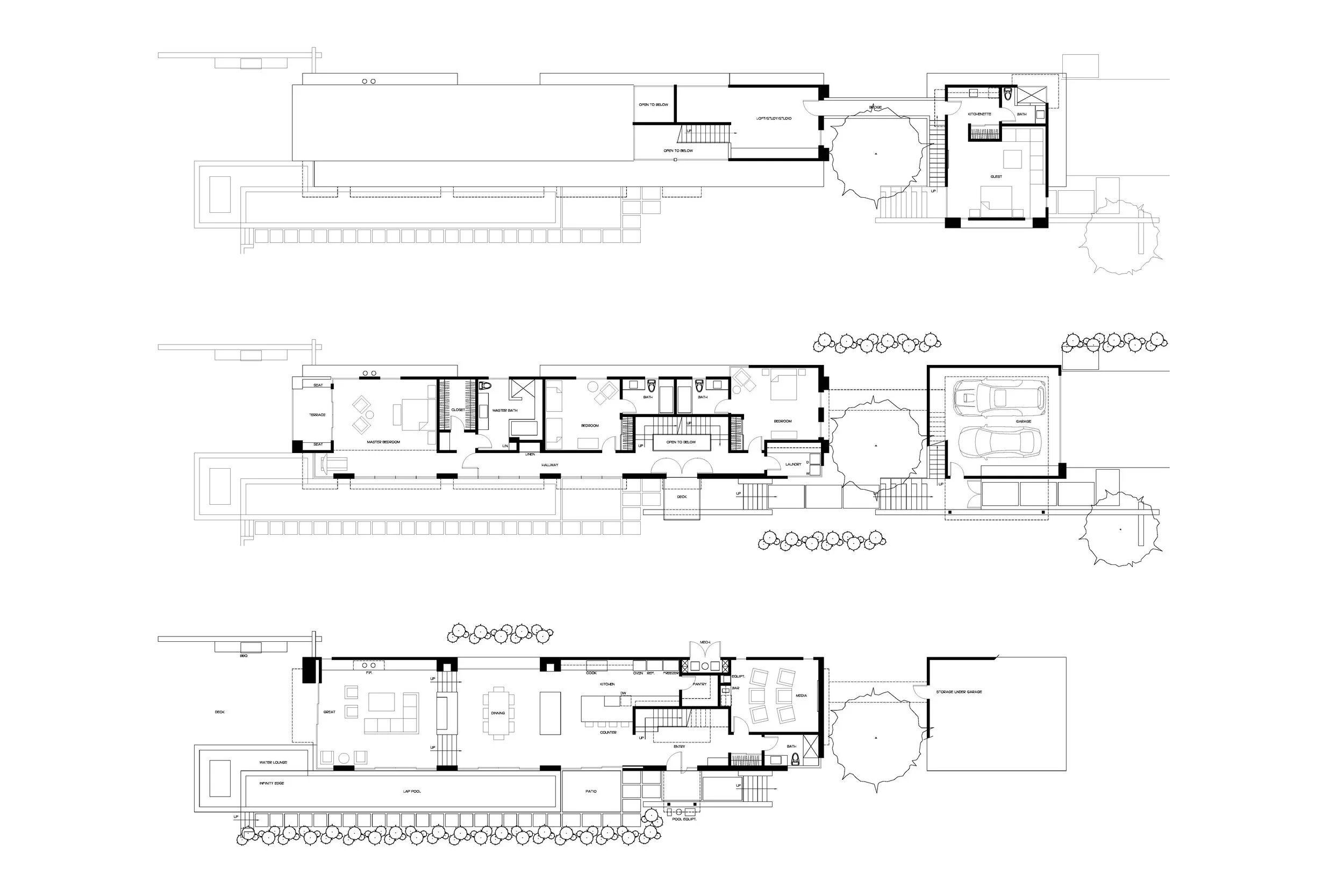
Located on Broad Beach Road in Western Malibu, the proposed single family residence is designed on a narrow ocean front property measuring 40’ wide by 320’ deep and descending approximately 20’ below the access road. Given the elongated characteristics of the property, the public level of the residence is located at the lower level, providing beach access with consideration for ocean “uprush”, and the private sleeping area’s on the upper level. On the rear of the property there is vehicle and pedestrian access with the Garage at street level and a Guest Suite/Office above linked to the main house by a bridge spanning over a protected outdoor courtyard.
