Grand Boulevard Residence
Project Info
Client: Grand Blvd. Residences
Location: Venice, CA
3,000 sq. ft. residences
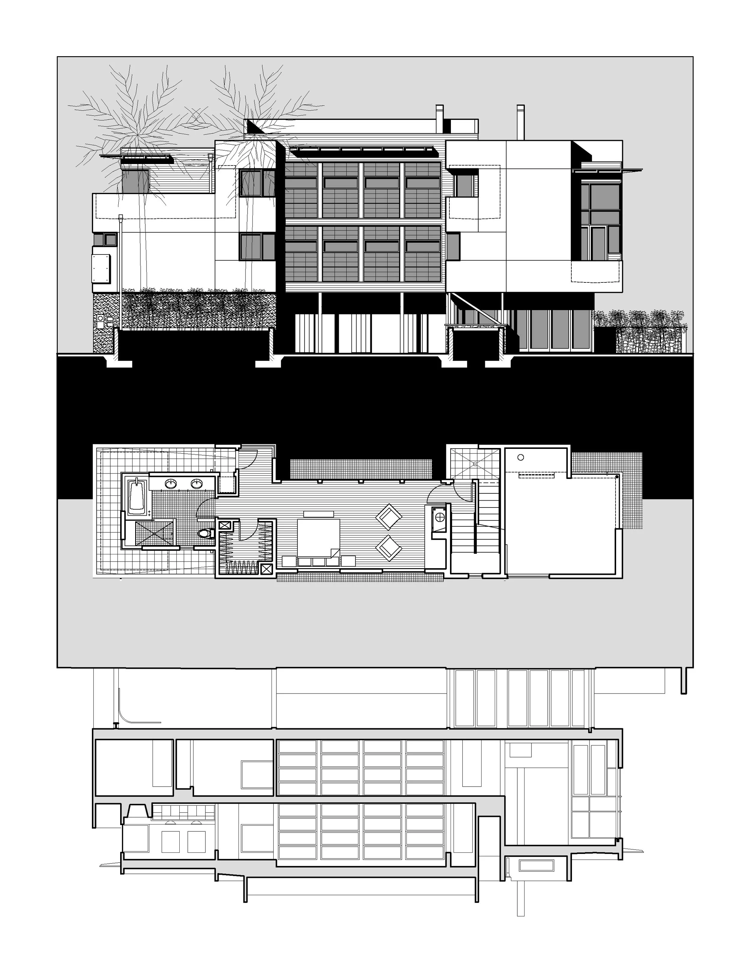
Set on two adjacent narrow parcels of land in Venice measuring twenty five feet by ninety feet each, the project consists of two mirror imaged, multi-level homes. As a direct response to the minimum lot size and a desire to maximize potential usable exterior space, we chose to elevate the majority of the habitable space within the upper two levels of the proposed residences, leaving a significant portion of the lower level as either exterior yard, private courtyard/garden or a transparent glass enclosed multi-purpose room with sliding glass walls resulting in either a physical or visual flexible ground plane.
